For Sale- 122 Mooney, Pearland, TX 77581 | Single Wide, 3 Bed, 2 Bath | MHBO.com
$82,995
122 Mooney
Pearland, TX 77581 Map It

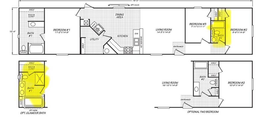
3 beds | 2 baths | 1,165 sqft

Details

Listing Type For Sale By Agent/Realtor
ID589535
MLS# 11653457
Posted 18 days ago
For Sale Asking Price $82,995
Seller Price FlexibilityNegotiable
Home TypeSingle wide
Bedrooms3
Bathrooms2
Mobility StatusHome cannot be moved
Location StatusIn a community
Michael Wasneuski
Listing Agent
(469) 795-1227

Contact Agent

Description

Go to SHOW MORE in blue to the left or bottom press on to view all info & read full description. HOME IS IN A COMMUNITY/PARK ON LEASED LOT. The Landing in Pearland what an amazing resort-style manufactured home community within a superb area & wonderful amenities close by. The home offers 1,165 sqft. of thoughtfully designed space with 3 bedrooms and 2 bathrooms. This manufactured home is crafted to blend comfort with efficiency, making it a great choice for those seeking a stylish yet practical living solution. Inviting and functional environment for modern living. Experience convenience and quality in one attractive home. Lets start with the kitchen-shaker style white cabinets with ample space, all stainless steel appliance's, large laundry room, vinyl flooring throughout, 2 tone paint colors and stylish finishes and features custom closets in all three bedrooms, a whole-house water filtration system and a security system, offering both comfort and peace of mind. Enjoy a fully fenced yard and a 3-car driveway providing ample parking and convenience rarely found. Land/lot lease is $890/month and covers: lot, water, trash, sewer, plus the amazing resort style amenities: Pool, clubhouse, gym, basketball court, playground, park and more! Homeownership here allows you to enjoy resort-style living with extra amenities inside the community. OWNER TO OWNER SALE- BROKER IS FACILITATING. NOT OFFERED BY THE COMMUNITY. CASH PURCHASE $82,995 OBO, estimated costs ~$890 per month lot fee + utilities. GUESSTIMATE ON FINANCING with CHATTEL LOAN at $82,995 -5%/$4150. down ~$970 per month (PLUS $890/month lot fee) TOTAL monthly $1,860.+-. CAN RENT AS WELL- CALL TO SEE IF YOU PREQUALIFY, WILL NEED TO HAVE A 5-7 MINUTE PHONE CONVERSATION. LOOKING FORWARD TO HELPING WITH HOME OWNERSHIP!! REMEMBER-HOME IS IN A COMMUNITY ON A LEASED LOT($890m. LOT NOT FOR SALE JUST THE HOME). Use of TDHCA contracts & disclosures (not TREC) - referral fee for MH BROKERS & TREC realtors. {Note: Zillow (and other syndications) do not properly calculate the mortgage & cost info; read the description above for closer numbers.} Must be approved by Community- Pass Rental & Criminal background check. Buyers will need ID & be vetted before setting appointment. Listing broker will handle all. This is not to be construed as an offer to lend. Rates & programs subject to change without notice. VA,FHA & CONVENTIONAL LOANS WILL NOT QUALIFY-THIS IS NOT REAL ESTATE {PERSONAL PROPERTY ON LEASED LOT}. Other fees will apply not in the down(Broker processing, S.O.Transfer/Title, pro-rated taxes & pro-rated rent). Listing data is deemed reliable but is NOT guaranteed accurate.

Features

 Central air conditioning  Dishwasher  Refrigerator
 Range/oven  Laundry room  Walk-in closet
 Deck

Inquire about this Mobile Home

Enter a valid US or Canadian phone number
MLS Disclaimer: Copyright My State MLS All rights reserved. Information is deemed reliable but not guaranteed.
Similar Mobile Homes

You might be interested in these nearby homes.

mobile home thumb
$65,900
ALVIN, TX
3 beds | 2 baths
mobile home thumb
$62,900
ALVIN, TX
3 beds | 2 baths
mobile home thumb
$62,900
ALVIN, TX
3 beds | 2 baths