For Sale- 8212 Lemonwood Dr N, Ellenton, FL 34222 | Single Wide | MHBO.com
$40,000
8212 Lemonwood Dr N
Ellenton, FL 34222 Map It

2 beds | 2 baths | 0 sqft

Details

Listing Type For Sale By Agent/Realtor
ID582972
MLS# 11620449
Posted 2 days ago
For Sale Asking Price $40,000
Seller Price FlexibilityNegotiable
Home TypeSingle wide
Bedrooms2
Bathrooms2
Mobility StatusHome cannot be moved
Location StatusIn a community
Pamela Pumilia
Listing Agent
(941) 233-8830

Contact Agent

Description

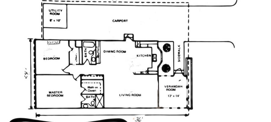
Colony Cove North/Lakes Section. 55+ age qualified, large dog/golf cart friendly community with on-site marina and dog park. Homes are on leased land; credit/background check. SPACIOUS open concept/updated/fully furnished 2BD/2BA/1 LANAI; Virtual walk-thru video available. ~~A 4 Point Insurance Inspection by licensed/insured inspector completed 12/2025 available that covers next 4 items: ~ROOF: 2021 Asphalt Shingles ~HVAC: 2002 with downdraft ceiling registers ~PLUMBING: 2001 RHEEM, CPVC/PVC/COPPER/PB pipes ~ELECTRIC: Westinghouse main panel; 150 amp **OTHER NOTABLES** ~TURNKEY FURNISHED: Quality furniture and household supplies. MOVE-IN ready! Tasteful coastal decor! ~REMODELED: Kitchen/baths with quality updates throughout! Matching QUARTZ countertops in kitchen/baths ~FLOORS: Solid floors with luxury vinyl plank flooring in Living Room/Kitchen/Bedrooms, ceramic floors in baths (NO carpet!) ~CEILINGS/WALLS: Vaulted sheetrock ceilings; Fresh soft sea-foam green painted sheetrock walls (NO paneling!) ~APPLIANCES: Newer stainless steel appliances in kitchen and includes washer/dryer in shed ~SHED: 6 x 8; washer/dryer (included), mop sink and extra storage ~LANAI/CARPORT/DRIVEWAY: Large front screened lanai, driveway has plenty of room for 2 standard vehicles! ~LOCATION: North side near a gated entrance ^^ROOM DESCRIPTIONS^^ ~LIVING ROOM/LANAI: Generous size, open living area has vaulted ceilings and flows out to the front 12 x 14 screened lanai through sliding glass doors. ~KITCHEN/DINING: Completely remodeled! New white cabinetry, high-end Quartz countertops with center island (pendant lights), beautiful backsplash, newer stainless steel appliances. Deep open bowl stainless steel sink and gooseneck faucet. There is a large pantry/closet next to dining room. ~2BED/2 FULL BATH:: -Large owners bedroom suite with double reach-in closets for tons of storage. The en-suite bath has a new quartz vanity with under-mount sink, trendy lighting, a PVC walk-in shower, ceramic floor and commode. -The guest bedroom has a large reach-in closet and a full second hallway bath just around the corner. Hallway bath has a step-in PVC shower, new quartz under-mount sink vanity, trendy lighting and upscale ceramic floor. Floor plan provided as a representation of the layout but measurements may vary. ~~Monthly lot rent of $1184.18 (market rate TBD by community and is subject to change) covers all of the park amenities plus almost all other typical monthly expenses such as water, sewer, trash pickup, recycling, all property taxes plus lawn maintenance. OTHER AMENITIES: ~9 community buildings includes 4 meeting halls ~6 community pools ~2 fitness centers ~Over 20 ponds/lakes/inlets ~Marina on the Manatee River: 75 slips/boat trailer storage (nominal fee) ~Fishing pier, outdoor pavilion, fireplace ~Dog Park split big/little pups. 2 pets permitted up to 75 lbs with breed restrictions ~2 Nature Preserves: Micro-forest 1.5 acres with walking trails plus canals off river for kayaking ~Billiards Room ~Woodworkers Shop ~Arts/Crafts, game/card rooms ~Libraries ~Pickle-ball, tennis, shuffle, horseshoe courts ~45+ miles of roadways for walking/riding ~Planned activities every day including holidays ~30+ clubs to join ~Golf cart accessible shopping plaza at Creekside Commons (Lowes, Aldi, Home Goods, Restaurants plus more!) Florida MH Sales, LLC cannot guarantee or warrant the accuracy of this information, measurements or condition of any property. Measurements are approximate. All homes are sold AS IS and personal/professional inspection is encouraged. The buyer assumes full responsibility for obtaining all current fees and policies.

Features

 Central air conditioning  Washer  Dryer
 Dishwasher  Refrigerator  Range/oven
 Microwave

Inquire about this Mobile Home

Enter a valid US or Canadian phone number
SMS Consent (required for SMS)

MLS Disclaimer: Copyright My State MLS All rights reserved. Information is deemed reliable but not guaranteed.
Similar Mobile Homes

You might be interested in these nearby homes.

mobile home thumb
$44,900
Ellenton, FL
2 beds | 2 baths
mobile home thumb
$39,800
Ellenton, FL
2 beds | 2 baths
mobile home thumb
$79,000
Ellenton, FL
2 beds | 2 baths