For Sale- 2107 Us Hwy 70 East, Lot #19, Hillsborough, NC 27278 | Double Wide | MHBO.com
$74,900
COMING SOON
2107 Us Hwy 70 East
Hillsborough, NC 27278 Map It

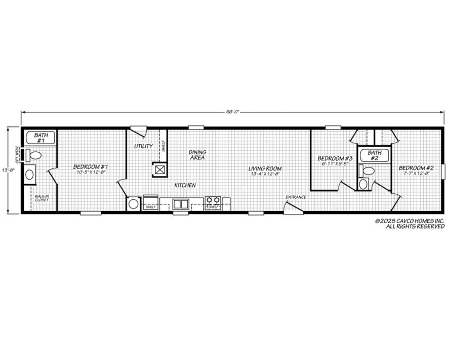
2 beds | 2 baths | 924 sqft | Lot: 19

Details

Listing Type Used For Sale By Agent/Realtor
ID580924
Posted 2 months ago
For Sale Asking Price $74,900
Lot Number19
Home TypeDouble wide
Bedrooms2
Bathrooms2
Bart Schroeder
Listing Agent
(910) 634-4044

Contact Agent

Description

Beautiful manufactured home situated on a fantastic lot near the back of the community, offering extra privacy and a peaceful setting. The open, split floorplan features 2 bedrooms, 2 bathrooms, and a bonus office, giving you the flexibility to work from home or create a dedicated hobby space. The primary suite includes a private ensuite bathroom and a spacious walk-in closet for added comfort.

On the opposite side of the home, you'll find another generously sized bedroom, a full bathroom, and a dedicated office. The kitchen comes equipped with essential appliances, and the home includes convenient washer and dryer hookups. Move-in ready and thoughtfully designed, this home blends comfort, functionality, and modern living.

Community Snapshot

Name Highwoods MHC
Location Hillsborough, NC 27278
Community Type All-ages community
More about Highwoods MHC mobile home thumb

Features

 Vinyl  Asphalt  Vinyl
 Refrigerator  Range/oven

Inquire about this Mobile Home

Enter a valid US or Canadian phone number
SMS Consent (required for SMS)

Similar Mobile Homes

You might be interested in these nearby homes.

mobile home thumb
$74,900
Hillsborough, NC
3 beds | 2 baths
mobile home thumb
$74,900
Hillsborough, NC
2 beds | 2 baths
mobile home thumb
$18,000
Creedmoor, NC
2 beds | 2 baths