For Sale- 19956 Sandy Ave Unit PM13, Lot #PM13, Rehoboth Beach, DE 19971 | Single Wide | MHBO.com
$105,995
19956 Sandy Ave Unit PM13
Rehoboth Beach, DE 19971 location_onMap It

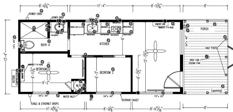
2 beds | 1 bath | 397 sqft | Lot: PM13

Details

Listing Type New For Sale By Agent/Realtor
ID512422
Posted 30 days ago
For Sale Asking Price $105,995
Lot NumberPM13
Home TypeSingle wide
Bedrooms2
Bathrooms1
real_estate_agents
Sales Representative
Listing Agent
call (888) 856-5591

Contact Agent

Description

(PREMIUM DOUBLE YARD CORNER LOT)- Welcome to your dream beach getaway! Step into relaxation and comfort with our brand new two-bedroom, one-bathroom seasonal park model perfectly nestled just two miles from the shores of Rehoboth Beach. This park model comes fully set & move-in ready. Soak in the sunsets from a spacious 8' front porch, matching stairs and landing added for charm, stylish white vinyl skirting, convenient two car side-by-side paved parking, and a 6x8 custom matched barn shed for your storage needs. Outdoor living at it finest, this park model features a landscaped, stoned side yard with PolyWood seating area and 6 burner gas grill. Inside you will find top quality residential craftmanship & materials including vaulted ceilings, stainless steel appliances, full size refrigerator, dishwasher, quartz/granite countertops, ceramic tile backsplash, hardwood cabinets, 2" wood blinds, mini split AC/heating units, ceiling fans, ceramic tile walk-in shower, wood molding throughout, and more. Elevate your coastal lifestyle and enjoy luxury seasonal coastal living and all the area has to offer without the year-round commitment. Escape the hassles of RV living with our spacious 14' wide, 38' long floorplan. Call or stop by today for a tour. Don't miss this opportunity to pick out the unit of your dreams. Season runs March 15th to November 15th.
(Exterior Color: CREAM).

Community Snapshot

Name Sea Air Village
Location Rehoboth Beach, DE 19971
Community Type All-ages community
More about Sea Air Village mobile home thumb

Features

check  Ceiling fan check  Dishwasher

Inquire about this Mobile Home

Enter a valid US or Canadian phone number
SMS Consent (required for SMS)

Similar Mobile Homes

You might be interested in these nearby homes.

mobile home thumb
favorite
$113,995
Rehoboth Beach, DE
2 beds | 1 bath
mobile home thumb
favorite
$95,000
Rehoboth Beach, DE
2 beds | 1 bath
mobile home thumb
favorite
$139,995
Rehoboth Beach, DE
5 beds | 2 baths